王小姐


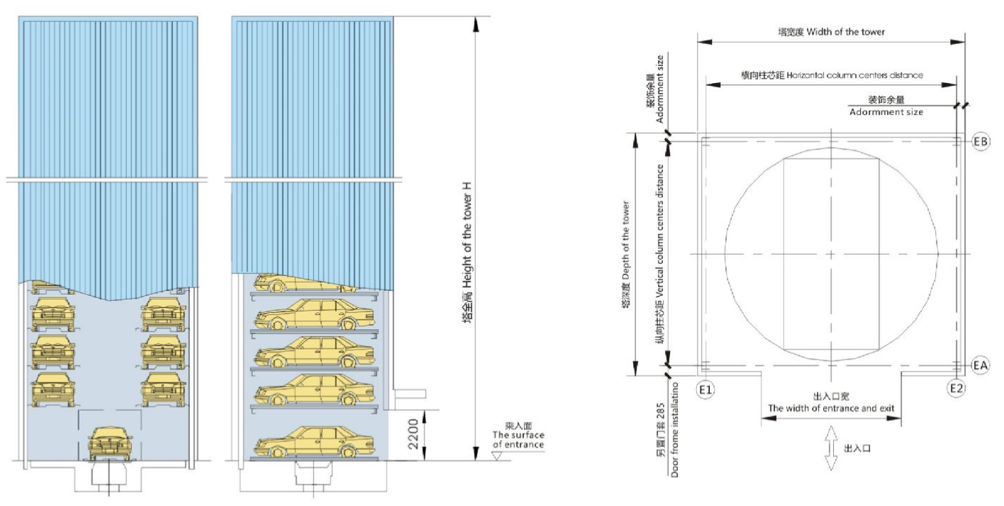
? 車庫占地面積小,空間利用率高,可實現1平方米停放1輛車
? 智能化控制,操作簡單方便
? 停車簡便快捷,平均存取車時間僅為63秒,最長不超過2分鐘
? 運行噪音低,節能環保
? 全封閉結構,防曬防雨,愛護車輛,避免車輛碰撞及被盜現象發生
? 汽車搬運器采用日本新明和智能機械手技術,實現了傳統設計理念的新突破
? 載車板采用新明和專利技----整體折彎自動焊接成型

? 鋼結構按日本抗震標準設計(七級),抗震性強,安全可靠。
? 搬運器采用層鎖機構,確保載車板和車輛在運行和靜止狀態下均不會滑移或墜落。
? 系統設有多重檢測、機電互鎖、緊急停止裝置、智能警報裝置,確保人、車、設備的安全。
? 語音、圖像等溫馨提示,人性化的設計,全方位體現生活智能化。
? 可獨立建造,也可建于建筑物內部,可單塔獨立設置,可多塔聯基設置
? 政府部門、繁華商業購物中心、醫院、舊城區狹窄地段。
廣日PCS垂直升降式停車庫采用世界領先的日本新明和垂直升降式停車設備先進技術,
精心打造而成的高起點、高標準停車設備先進的垂直升降系統,具有占地面積小,空間利用率高的優勢,在狹窄的空間中開拓出廣闊的天地,大大提升城市空間的利用 率。
90度進入PCS□X1D

180度進入PCS□X2D


任何人進入、瀏覽和使用廣州廣日智能停車設備有限公司網站即承認已閱讀、理解并同意受本使用條款約束,并遵守所有適用的法律和法規。若您不同意遵從本使用條款,請勿使用本網站。廣州廣日智能停車設備有限公司有權隨時更新本使用條款,您將受到更新后的使用條款的約束,因此您應經常地訪問并了解本網站的使用條款。
免責聲明
任何情況下,廣州廣日智能停車設備有限公司及相關人對于進入或使用本網站引起的任何依賴本網站內容而作出的決定或采取的行動不承擔任何責任,對進入或使用本網站而產生的任何直接的、間接的、懲罰性的損失或其他任何形式的損失包括但不限于業務中斷、數據丟失或利潤損失不承擔任何責任,即使廣州廣日智能停車設備有限公司被明確告知可能會發生上述損失。
廣州廣日智能停車設備有限公司以及相關人對于您在進入、瀏覽和使用本網站或從本網站下載任何內容而導致病毒或其他破壞性程序對您的電腦系統以及其他任何軟件、硬件、IT系統或財產的損害或損失不承擔任何責任。
廣州廣日智能停車設備有限公司以及相關人對于第三人采用非法手段進入本網站取得有關密碼、資料和內容而造成的任何損害或損失不承擔任何責任。
使用條款
本網站提供的任何內容(包括但不限于數據、文字、圖表、圖象、聲音或錄象等)的版權均屬于廣州廣日智能停車設備有限公司或相關權利人。未經廣州廣日智能停車設備有限公司或相關權利人事先的書面許可,您不得以任何方式擅自復制、再造、傳播、出版、轉帖、改編或陳列本網站的內容。同時,未經廣州廣日智能停車設備有限公司書面許可,對于本網站上的任何內容,任何人不得在廣州廣日智能停車設備有限公司所屬的服務器上做鏡像。任何未經授權使用本網站的行為都將違反《中華人民共和國著作權法》和其他法律法規以及有關國際公約的規定。